東海不動産株式会社

物件概要

HOME売買物件 > 物件詳細

中古住宅

豊科駅、イオン、日赤徒歩圏内の立地です!

所在地

安曇野市豊科 4804番地1

名称百瀬様邸宅

土地面積公簿  176.98㎡ (53.53坪)

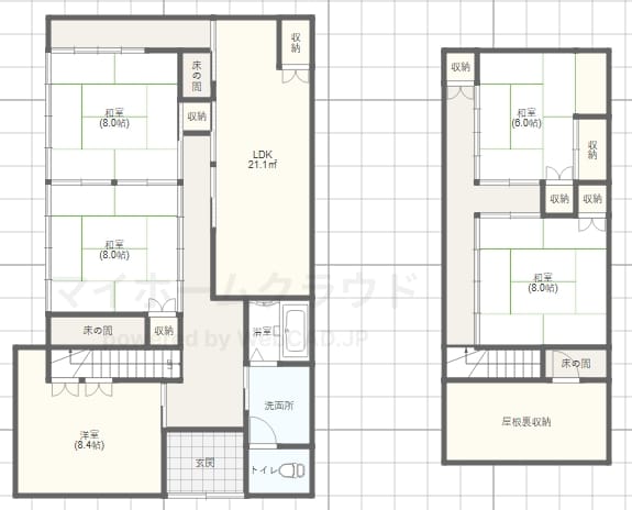
間取り4LDK

建物面積144.42㎡(43.68坪)

価格 3000 万円

◆クリックすると画像が切り替わります。

スタッフオススメ

所在地 安曇野市豊科 4804番地1 建物名 百瀬様邸宅 
価格 3000万円 消費税内税額
土地面積 公簿  176.98㎡ (53.53坪) 湯権
建物面積 144.42㎡(43.68坪) 構造 木造
間取 4LDK その他一時金
詳細間取 完成年月 1978年6月
総階数 2階  下水道 公共下水道
通学区 安曇野市立豊科北小学校
安曇野市立豊科北中学校
引渡/入居日 相談
手数料 私道負担面積
接道状況 方角:東 道路幅員:4m 公私区分:公道 接面:9.2m 
設備 システムキッチン・インターホン・温水洗浄便座・バス1坪以上・BT別室・バルコニー・庭・エアコン・日当り良好・上水道・洗髪洗面化粧台・照明器具付き・プロパンガス・下水道
駐車場 有  1台可 
交通 電車: 大糸線豊科駅 距離460m 
備考 〇エアコン2台 〇在来木造住宅 
取引態様 一般媒介 最終更新日 2026-02-04

マップ

※物件位置が表示されていない場合もあります。 正確な位置は取り扱い会社へお問い合わせください

物件のお問い合わせ

物件情報 中古住宅 / 安曇野市豊科4804番地1 / 価格:3000万円 / 物件詳細URL:https://www.azumino-toukai.jp/sale/single.php?id=448035
お名前 必須
電話番号
メールアドレス 必須
お問い合わせ種別 最新の空室状況を知りたい
実際に見学したい
その他の問い合わせ
ご質問内容
ご希望の条件、ご予算、その他質問事項があればご記入ください